LIC#1136892
Welcome to Cabodi General Contracting's ADU page. We build high quality, affordable ADUs in an efficient and safe manner to ensure we provide the best ADU experience.
The benefit of preapproved ADU plans is two fold. One is that the longest portion of the ADU process, the design and permitting portion, is cut down to size. The second one is these preapproved ADUs significantly reduce the Design fees. Overall choosing a preapproved ADU set of plans can save you an estimated $20,000.
Saving you both time and money is what we do.
One other benefit is offered to all California residents for all ADU builds. This is a $40,000 grant from the state of California to help cover some up front costs. the stipulations are as follows.
-
Income Limits: Applicants must earn below a certain income threshold, typically 80% of the Area Median Income (AMI). These limits vary by county.
-
The applicant must occupy the primary residence on the property where the ADU will be constructed.
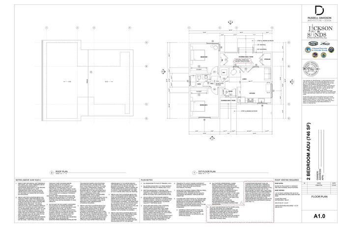
Below you will see preapproved ADUs in certain areas. These areas are not the only areas we cover nor the only areas in California that have preapproved ADUs. We cover the majority of norther California. So if you are interested please reach out and we can let you know if we cover your area. We also do custom ADU builds.
Pre Approved Placer County ADUs
https://www.placer.ca.gov/6650/Pre-Approved-Accessory-Dwelling-Unit-Pla
In Placer county there are 3 preapproved ADU designs. Follow the link above to learn more. One great benefit about building in Placer County is that any ADU built that is under 750 sqft the permit impact fees are waived. Impact fees are a one time payment. The money goes toward parks/rec and fire mitigation.
Pre Approved Sacramento County ADUs
https://building.saccounty.gov/pages/adu.aspx
Sacramento county has 5 pre approved ADU Designs. Follow the link above to learn more. One great benefit about building in Sacramento County is that any ADU built that is under 1,000 sqft the permit impact fees are waived. Impact fees are a one time payment. The money goes toward parks/rec and fire mitigation.
Pre Approved City of Sacramento ADUs
https://adu.cityofsacramento.org/Shelf-ready-plans
In the City of Sacramento there are 3 preapproved ADU designs. Follow the link above to learn more. One great benefit about building in the City Of Sacramento is that any ADU built that is under 749 sqft the permit impact fees are waived. Impact fees are a one time payment. The money goes toward parks/rec and fire mitigation.
Concept interior finishes
The finishes shown above are concepts. You can pick a concept and we will match it or you can come in with your own and we will match that as well. This build is for you not for us.
Reasons to build an ADU
1. Passive income opportunity (Rental)
2. Property value increase of 25-30%
3. You can sell it separately from your property or home like a condo.
4. Your parents are retiring or you are.
5. Your children are looking at moving out.
Reasons to build an ADU with us
1. Most Cost effective builder in the area. at an average of $200/sqft that is an all inclusive price.
2. Our communication through out the processes is unmatched. You will never be wondering what is happening.
3. Our quality will show through in every room and we carry 1 year workmanship warranty
4. We build your vision and we build it efficiently. We want you enjoying your ADU as fast you can.
for custom built ADUs the sqft cost may vary. We do build custom ADUs as well.
The Process
We made the processes of building an ADU simple. The following steps are all it takes from you to go from wanting an ADU to having an ADU.
Step 1: Reach out to us and provide your address so we can determine if an ADU is feasible at your property and what size we recommend.
Step 2: Pick your Preapproved ADU.
Step 3: Cabodi GC will get the design process moving. This includes all documentation and paper work the county/city needs to approve your ADU for building. Then submit to the city/county for approval. (1-2 weeks).
Step 4: Under the review process with the City/County(3-4 weeks).
Step 5: Pick finishes. Once we have submitted your Plan package we will pick a date to go over all interior and exterior finishes.
Step 6: Plans are approved, permit is in hand and we start building your ADU. (6-10 weeks). Throughout this time line weekly updates will be made. Also at certain increments of the build walks will be scheduled with you to ensure everything is as you desired.
Step 7: Move in day!!!
For custom built ADUs, which we build as well, these time lines are extended significantly.















































